Teilsaniertes 140m² Wohnhaus mit 1.012m² schönem Grundstück in Ruden bei Völkermarkt - St. Radegund
Wohnfl./Nutzfl.
140m²
Grundstück
1.012m²
Kaufpreis
€ 239.000
Details zur Liegenschaft
Lage
9113 Ruden bei Völkermarkt, St. Radegund - sonnig und ruhig!
Nähe
ADEG mit Post, Tankstelle, Kindergarten, Volksschule, etc.
Wohn-/Nutzfläche ca.
140,00m² plus Terrassen und Balkone mit herrlichem Blick
Grundstück
1.012m² schönes, sonniges, ruhiges Grundstück
Baujahr ca.
1976 Massivbau mit Vollkeller und Garage
2021 - 2025 Umbau und Sanierung des Wohnhauses
2021 - 2025 Umbau und Sanierung des Wohnhauses
Beschreibung
... bei Völkermarkt in St. Radegund, mit folgender Raumaufteilung.
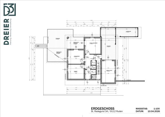
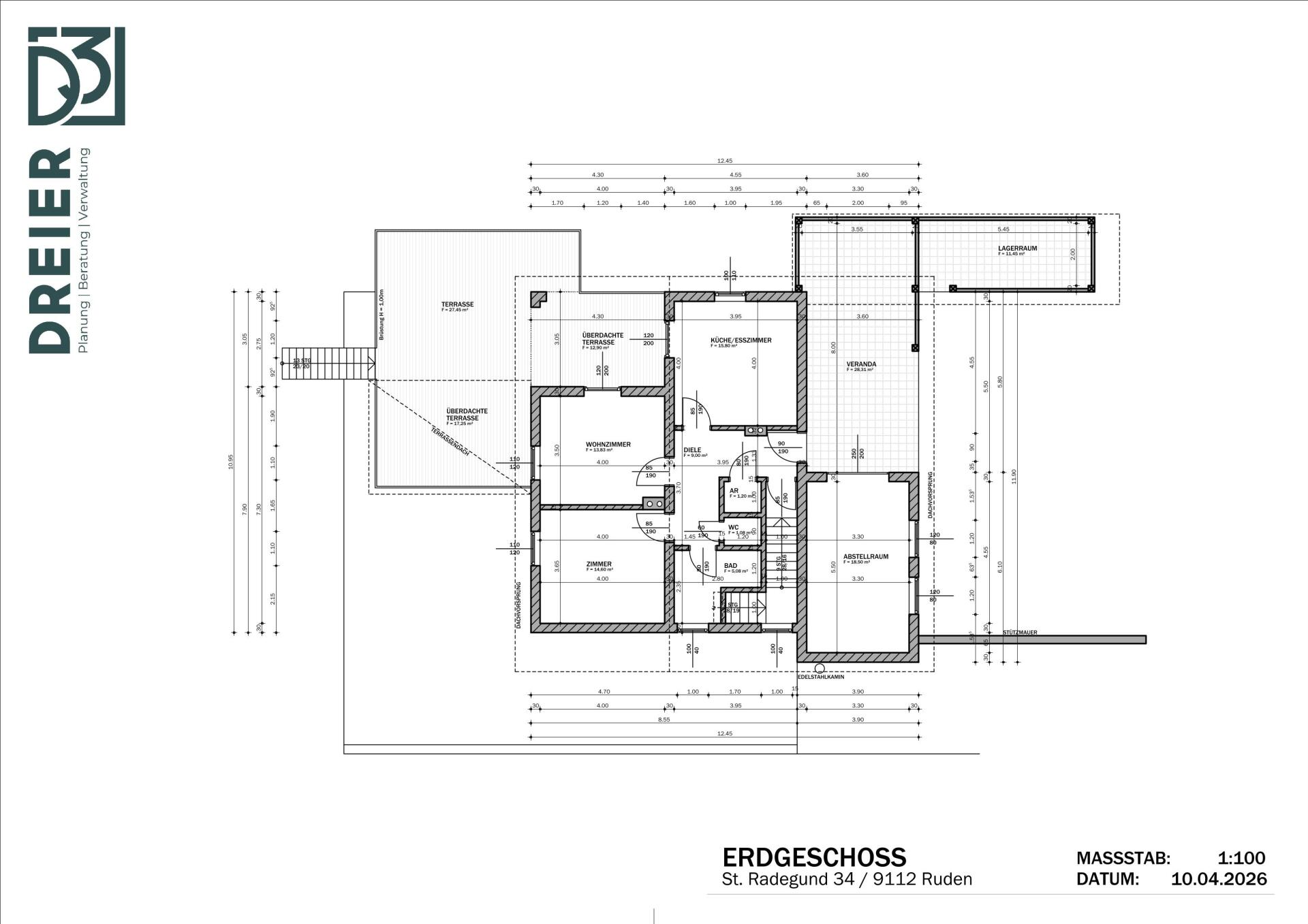
ERDGESCHOSS: ca. 60,00m² bestehend aus Windfang (3,55m²), Vorraum (5,92m²), Schlafzimmer/Wohnzimmer (14,40m²) mit Ausgang zur Terrasse, Schlafzimmer (14,60m²), neue Wohnküche (16,00m²) mit Ausgang zur überdachten Terrasse 10,00m² plus offener Terrasse 38,00m², Speis (1,18m²), Bad (4,32mm²) und WC (1,06m²).
UNTERGESCHOSS: ca. 82,00m² bestehend aus Stiegenhaus (6,35m²), Vorraum (13,86m²), Wohnzimmer (25,49m²), Wohnküche (15,91m²), Schlafzimmer (15,88m²) und Bad mit WC (5,00m²). Alle Angaben und Flächenangaben lt. Pläne und ohne Gewähr! Änderungen/Irrtümer sind vorbehalten!
ERDGESCHOSS: ca. 60,00m² bestehend aus Windfang (3,55m²), Vorraum (5,92m²), Schlafzimmer/Wohnzimmer (14,40m²) mit Ausgang zur Terrasse, Schlafzimmer (14,60m²), neue Wohnküche (16,00m²) mit Ausgang zur überdachten Terrasse 10,00m² plus offener Terrasse 38,00m², Speis (1,18m²), Bad (4,32mm²) und WC (1,06m²).
UNTERGESCHOSS: ca. 82,00m² bestehend aus Stiegenhaus (6,35m²), Vorraum (13,86m²), Wohnzimmer (25,49m²), Wohnküche (15,91m²), Schlafzimmer (15,88m²) und Bad mit WC (5,00m²). Alle Angaben und Flächenangaben lt. Pläne und ohne Gewähr! Änderungen/Irrtümer sind vorbehalten!
Ausstattung & Highlights
● neue Kunststofffenster (2-fach) mit Rollos und Fliegengitter
● neue Küchen im Erd- und Untergeschoss
● neue Pellets-ZH von KWB Easyfire
● neue Terrasse im EG vergrößert
● neue Pflasterungen außen
● neue Hochbeete außen
● neue Küchen im Erd- und Untergeschoss
● neue Pellets-ZH von KWB Easyfire
● neue Terrasse im EG vergrößert
● neue Pflasterungen außen
● neue Hochbeete außen
Stellplätze
viele PKW-Stellplätze am Grundstück
eine Garage ca. 18,15m² als Werkstatt oder Lagerraum genutzt.
eine Garage ca. 18,15m² als Werkstatt oder Lagerraum genutzt.
Zimmer
4
Böden
Vinyl, Laminat, Teppich- und Fliesenböden
Fenster
neue Kunststofffenster (2-fach von 2021) mit Rollos und Insektenschutzgitter
Heizung
neue Pellet-ZH (2021) von KWB Easyfire mit neuen Außenedelstahlkamin.
Bad
2 Bäder und 2 WCs
Möblierung
Vollmöbliert bis auf persönliche Sachen!
Zustand
Gut!
Beziehbar
nach Vereinbarung!
Betriebskosten dzt.ca.
€ 201,95 Kanal und Müllgebühren, quartalsmäßig
€ 100,00 Strom, mtl.
€ 77,00 Wasser, jährl.
€ 100,00 Strom, mtl.
€ 77,00 Wasser, jährl.
Kaufpreis
€ 239.000,-- Vollmöbliert!
Kaufnebenkosten
3,5% Grunderwerbssteuer
1,1% Grundbucheintragungsgebühr (Eigentumsrecht)
3,0% Maklerhonorar zzgl. 20% USt.
1,0% Kaufvertragskosten laut Notartarif zzgl. 20% USt.
0,1% Barauslagen für Beglaubigungen
1,2% Eintragung des Darlehens ins Grundbuch
Energiewerte
HWBSK
254,00kWh/m²a
G
PEBSK
453,40kWh/m²a
G
CO2 SK
5,80kg/m²a
A++
fGEE
2,59
E
Gültig bis
24.02.2036
Manfred NEUHAUSER
+43 (0) 664.400 77 70
office@neuhauser-immobilien.at
Haben Sie eine Frage oder möchten die Immobilie besichtigen?
Adresse der Liegenschaft
Sie finden diese Liegenschaft unter folgender Adresse:
St. Radegund 34, 9113 Ruden
