Junge und schöne 3-Zi-Wohnung mit Terrasse und Tiefgarage und schönem Ausblick in Welzenegg
Wohnfl./Nutzfl.
80,76m²
Grundstück
-
Kaufpreis
€ 235.000
Details zur Liegenschaft
Lage
Kudlichgasse/Steingasse, 9020 Klagenfurt am Wörthersee
Nähe
Kika, Lutz, Banken, Einkaufsmärkte und Bushaltestelle - alles um die Ecke
Wohn-/Nutzfläche ca.
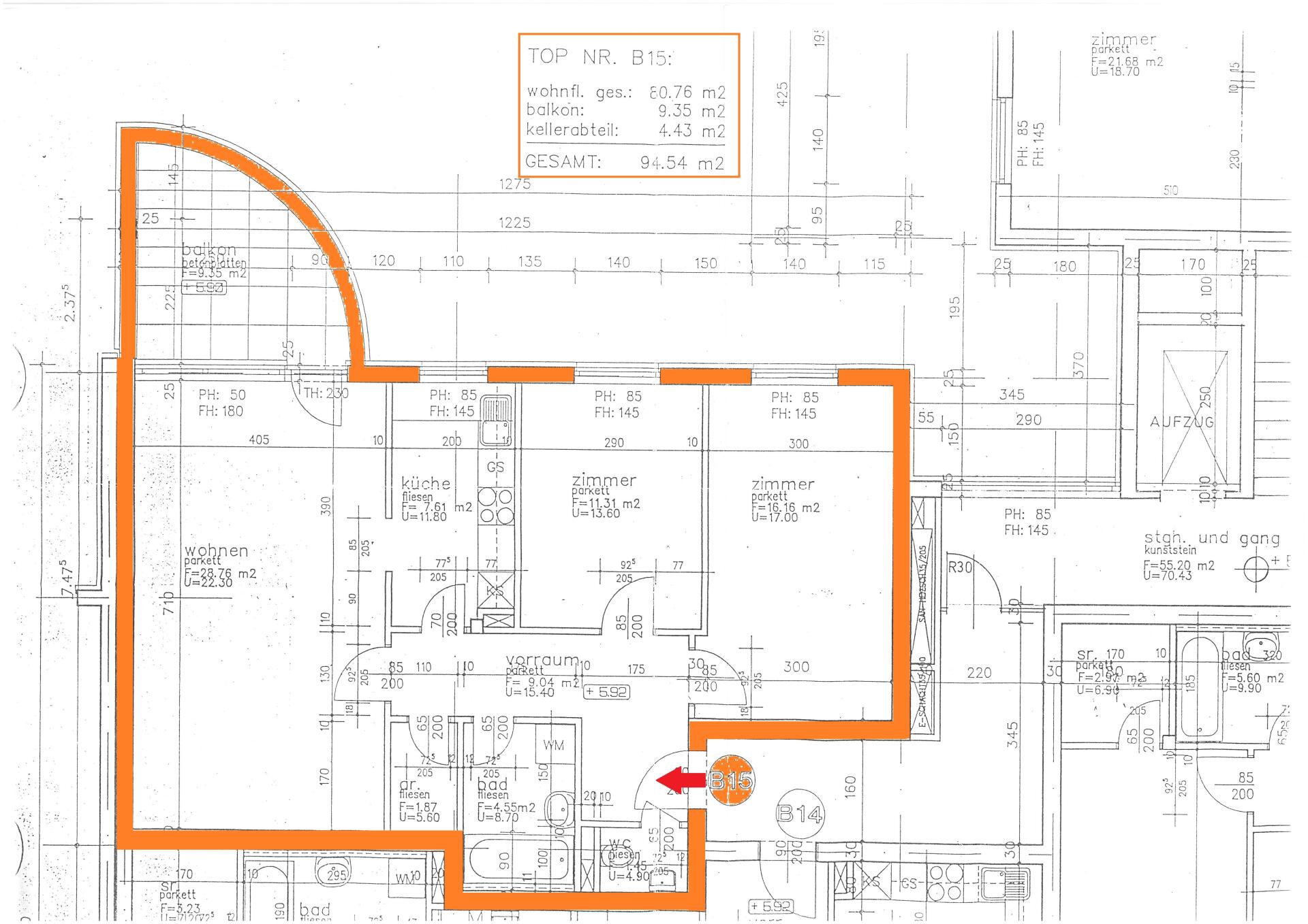
80,76m² plus ca. 9,35m² Ost-/Südterrasse/Balkon - Wohnung TOP B15
Baujahr
um die 1994/1995 - gepflegte und sanierte Wohnhausanlage!
Stockwerk
2. Stock mit Lift
Lift
JA
Beschreibung
...se, bestehend aus großem Vorraum/Diele (9,04m²), 1 Küche (7,61m²), 1 großes Wohn-/Esszimmer (28,76m²) mit Ausgang zur Terrasse (9,35m²), 1 Elternschlafzimmer Ost (16,16m²), 1 Kinderzimmer Ost (11,31m²) 1 sanierte Dusche (4,55m²), 1 WC extra (1,45m²), 1 Abstellraum (1,87m²) und 1 Kellerabteil (4,43m²). Alle Flächenangaben lt. Plan und Nutzwertgutachten und ohne Gewähr! Änderungen/Irrtümer sind vorbehalten!
Ausstattung & Highlights
schöne runde Terrasse mit herrlichen Ausblick, schöne Parkettböden, barierrefreie neue Dusche, schönes Stiegenhaus, gepflegte und sanierte Wohnhausanlage.
Stellplätze
1 Tiefgarage TOP 41
Zimmer
3
Böden
schöne Parkettböden
Fenster
Kunststofffenster (2-fach) mit Außenrollos und im Esszimmer mit elektr. Rollos.
Heizung
Heizung und Warmwasser mittels Stadtgas
(keine Gas-Therme in der Wohnung – es wird alles stationär im Keller aufbereitet)
(keine Gas-Therme in der Wohnung – es wird alles stationär im Keller aufbereitet)
Bad
Bad mit barierrefreier Dusche und 1 WC extra
Möblierung
Einbauküche mit Geräten und Vorraum-Einbaukästen
Zustand
Schön!
Beziehbar
nach Vereinbarung!
Betriebskosten dzt. ca.
€ 397,31 für Whg. inkl. BK, Heizung, Warmwasser und Rücklage.
€ 13,30 für Tiefgarage inkl. BK und Rücklage
€ 13,30 für Tiefgarage inkl. BK und Rücklage
Kaufpreis
€ 235.000,--
Kaufnebenkosten
3,5% Grunderwerbssteuer
1,1% Grundbucheintragungsgebühr (Eigentumsrecht)
3,0% Maklerhonorar zzgl. 20% USt.
1,0% Kaufvertragskosten laut Notartarif zzgl. 20% USt.
0,1% Barauslagen für Beglaubigungen
1,2% Eintragung des Darlehens ins Grundbuch
Energiewerte
HWBSK
64,00kWh/m²a
C
PEBSK
178,60kWh/m²a
C
CO2 SK
36,80kg/m²a
C
fGEE
1,13
C
Gültig bis
13.09.2034
Manfred NEUHAUSER
+43 (0) 664.400 77 70
office@neuhauser-immobilien.at
Haben Sie eine Frage oder möchten die Immobilie besichtigen?
Kreditrechner
Berechnen Sie die monatliche Kredithöhe für die Finanzierung dieser Immobilie.
Bitte passen Sie die Vorgaben noch an Ihre Gegebenheiten an:
Bitte passen Sie die Vorgaben noch an Ihre Gegebenheiten an:
Die monatliche Rate beträgt:
€ --
Bitte beachten Sie, dass die tatsächlichen Konditionen abhängig von Bonität und Bank variieren können.
Adresse der Liegenschaft
Sie finden diese Liegenschaft unter folgender Adresse:
Kudlichgasse 64, 9020 Klagenfurt
