Schöne sanierte 4 Zi Wohnung 100m² mit Balkon und XXL-Terrasse und 2 Garagen - Rotschitzen
Wohnfl./Nutzfl.
100,00m²
Grundstück
-
Kaufpreis
€ 275.000
Details zur Liegenschaft
Lage
9073 Rotschitzen
Nähe
5 Automin. nach Klagenfurt
Wohn-/Nutzfläche ca.
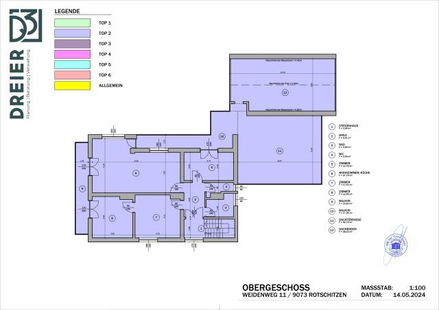
WOHNUNG TOP 2
• Whg. TOP 2 mit ca. 100,55m² Nfl. plus 2 Balkone mit ca. 27,89m²
• plus XXL Dachterrasse mit ca. 52,70m²
• plus Abstellraum auf der Terrasse/Dachboden mit ca. 48,43m²
• plus Dachboden ca. 104,40m² mit Balkon
• Whg. TOP 2 mit ca. 100,55m² Nfl. plus 2 Balkone mit ca. 27,89m²
• plus XXL Dachterrasse mit ca. 52,70m²
• plus Abstellraum auf der Terrasse/Dachboden mit ca. 48,43m²
• plus Dachboden ca. 104,40m² mit Balkon
Baujahr
um die 1970 - gepflegte und sanierte Wohnhausanlage!
Stockwerk
1. Stock
Lift
Nein
Beschreibung
...bestehend aus Stiegenhaus (3,59m²), Diele (6,51m²), 1 großes Wohn-/Esszimer mit offener Küche (37,79m²) und mit Ausgang zum Balkon (10,50m²) und zur XXL-Terrasse (52,70m²) und überdachten Abstellraum (48,43m²), 1 Zimmer Ost (17,41m²), 1 Zimmer Ost (14,93m²) mit Balkon (10,50m²), 1 Zimmer West (12,78m²) mit Balkon (17,38m²), 1 Bad mit Dusche und Fenster (4,95m²), 1 WC mit Fenster (2,59m²). Weiters gehört zur Wohnung der komplette Dachboden mit ca. 104,40m². Alle Flächenangaben lt. Plan und Nutzwertgutachten und ohne Gewähr!
Ausstattung & Highlights
XXL-Terrasse, 2 Balkone, kompletter Dachboden, 2 Garagen und 2 PKW-Abstellplätze.
Stellplätze
2 Garagen (19,60m² und 21,25m²) und PKW Stellplätze vor der Garage.
Zimmer
4
Böden
Parkett-, Laminat- und Fliesenböden
Fenster
neue Kunststofffenster (3-fach) mit Außenrollos teilw. elektrisch.
Heizung
ÖL-ZH mit ca. 4.000 liter Tank
Bad
schönes Bad mit Dusche und mit Fenster
WC separat und mit Fenster
WC separat und mit Fenster
Möblierung
Einbauküche mit Geräten.
Zustand
Sehr Gut!
Beziehbar
Sofort!
Betriebskosten dzt. ca.
€ 170,-- im Quartal für Restmüll, Wasser und Kanal.
€ 180,-- mtl. für Heizung & Warmwasser
€ 180,-- mtl. für Heizung & Warmwasser
Kaufpreis
€ 275.000,--
Kaufnebenkosten
3,5% Grunderwerbssteuer
1,1% Grundbucheintragungsgebühr (Eigentumsrecht)
3,0% Maklerhonorar zzgl. 20% USt.
1,0% Kaufvertragskosten laut Notartarif zzgl. 20% USt.
0,1% Barauslagen für Beglaubigungen
1,2% Eintragung des Darlehens ins Grundbuch
Energiewerte
HWBSK
149,00kWh/m²a
D
fGEE
1,91
D
Gültig bis
12.03.2034
Manfred NEUHAUSER
+43 (0) 664.400 77 70
office@neuhauser-immobilien.at
Haben Sie eine Frage oder möchten die Immobilie besichtigen?
Adresse der Liegenschaft
Sie finden diese Liegenschaft unter folgender Adresse:
Weidenweg 11, 9073 Viktring
