Tolle und schöne 3 Zi Wohnung mit Loggia und Garage - Hausergasse
Wohnfl./Nutzfl.
86,00m²
Grundstück
-
Kaufpreis
€ 239.000
Details zur Liegenschaft
Lage
9020 Klagenfurt, Hausergasse
Nähe
City
Wohn-/Nutzfläche ca.
86,24m² inkl. Ostloggia - Wohnung TOP 10 (lt. Nutzwerte)
Baujahr
um die 1965 - 1966 - gepflegte und kleine Wohnhausanlage!
Stockwerk
Erdgeschoss
Lift
Nein
Beschreibung
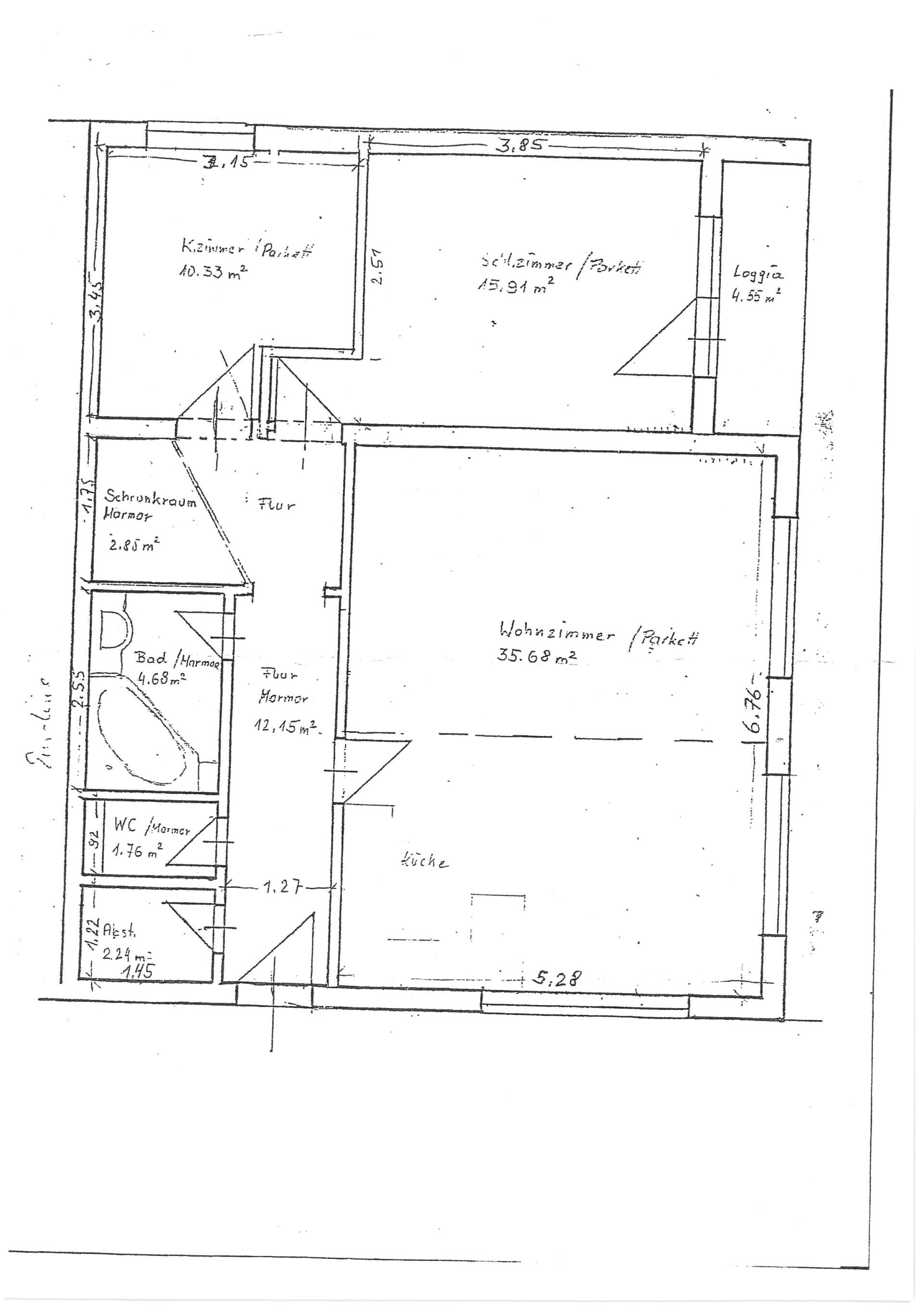
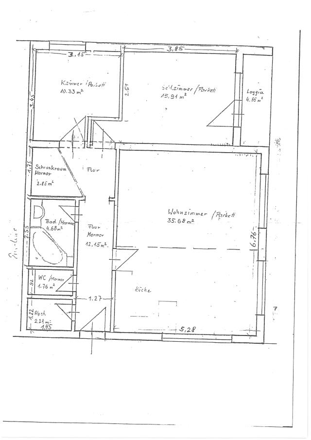
...Ÿes und sehr schönes Wohn-/Esszimmer (Ost-/Süd-Ausrichtung) mit offener Küche (36,50m²), 1 Elternschlafzimmer Ost (14,35m²) mit Loggia (4,00m²), 1 Kinderzimmer Nord (10,00m²), 1 Bad mit Eckbadewanne (4,25m²), 1 WC extra (1,34m²), 1 Abstellraum für Waschmaschine (2,10m²) und 1 Abstellraum (2,21m²). Weiteres gehört zur Wohnung ein geschlossenes Kellerabteil mit ca.15,00m². Alle Flächenangaben lt. Plan und Nutzwertgutachten und Naturmaße und ohne Gewähr!
Stellplätze
1 Garapenplatz TOP 6 mit ca. 12,50m²
Zimmer
3
Böden
Marmorböden im Vorraum
schöne Fliesenböden im Wohn-Esszimmer und Küche
Parkettboden in den Schlafzimmern.
schöne Fliesenböden im Wohn-Esszimmer und Küche
Parkettboden in den Schlafzimmern.
Fenster
Kunststofffenster (2-fach) mit Außenrollos.
Heizung
ÖL-ZH und Warmwasser mittels Stromboiler im Keller.
Bad
tolles Marmorbad mit großer Eckbadewanne.
Möblierung
Einbauküche mit Geräten.
Zustand
Sehr schön!
Beziehbar
Sofort!
Betriebskosten dzt.
€ 367,12 inkl. Heizung, Verwaltung, Rücklagen und Garage.
Kaufpreis
€ 239.000,-- inkl. Garage.
Kaufnebenkosten
3,5% Grunderwerbssteuer
1,1% Grundbucheintragungsgebühr (Eigentumsrecht)
3,0% Maklerhonorar zzgl. 20% USt.
1,0% Kaufvertragskosten laut Notartarif zzgl. 20% USt.
0,1% Barauslagen für Beglaubigungen
1,2% Eintragung des Darlehens ins Grundbuch
Energiewerte
HWBSK
102,00kWh/m²a
D
fGEE
3,79
F
Gültig bis
17.11.2032
Manfred NEUHAUSER
+43 (0) 664.400 77 70
office@neuhauser-immobilien.at
Haben Sie eine Frage oder möchten die Immobilie besichtigen?
Kreditrechner
Berechnen Sie die monatliche Kredithöhe für die Finanzierung dieser Immobilie.
Bitte passen Sie die Vorgaben noch an Ihre Gegebenheiten an:
Bitte passen Sie die Vorgaben noch an Ihre Gegebenheiten an:
Die monatliche Rate beträgt:
€ --
Bitte beachten Sie, dass die tatsächlichen Konditionen abhängig von Bonität und Bank variieren können.
Adresse der Liegenschaft
Sie finden diese Liegenschaft unter folgender Adresse:
Hausergasse 11, 9020 Klagenfurt
