Wohn- und Geschäftshaus mit 550m² im Zentrum von Feldkirchen zum Superpreis
Wohnfl./Nutzfl.
550m²
Grundstück
441m²
Kaufpreis
€ 370.000
Details zur Liegenschaft
Lage
Beste Geschäfts- und Einkaufslage in Feldkirchen.
Standort
Schillerplatz 1, 9560 Feldkirchen in Kärnten.
Nutzflächen ca.
ERDGESCHOSS mit ca. 250m²
Geschäft I = 178,46m²
Geschäft II = 71,84m²
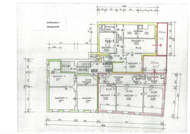
1. OBERGESCHOSS mit ca. 290m²
Whg. TOP I (West) = 3 Räume, 1 Vorraum, 1 WC = 86,09m²
Whg. TOP II (Süd)= 3 Räume, 1 Vorraum, 1 AR, 1 Bad, 1 WC = 101,93m²
Whg. TOP III (Ost) = 3 Räume, 1 Vorraum, 1 Bad, 1 WC = 101,88 m2
DACHGESCHOSS mit ca. 168m²
Dachboden ausbaufähig
GESAMTNUTZFLÄCHEN ca. 700m²
Geschäft I = 178,46m²
Geschäft II = 71,84m²
1. OBERGESCHOSS mit ca. 290m²
Whg. TOP I (West) = 3 Räume, 1 Vorraum, 1 WC = 86,09m²
Whg. TOP II (Süd)= 3 Räume, 1 Vorraum, 1 AR, 1 Bad, 1 WC = 101,93m²
Whg. TOP III (Ost) = 3 Räume, 1 Vorraum, 1 Bad, 1 WC = 101,88 m2
DACHGESCHOSS mit ca. 168m²
Dachboden ausbaufähig
GESAMTNUTZFLÄCHEN ca. 700m²
Grundstück
441m²
Baujahr
Das ursprünglich im Jahre 1906 erbaute Wohn- und Geschäftshaus wurde in den Folgejahren laufend baulich verändert und zuletzt in den Jahren nach 1980 revitalisiert.
Beschreibung
...Das 1. Obergeschoss wurde in der Vergangenheit mit zwei Einheiten als Wohnung genutzt, eine Einheit diente als Friseursalon. Das gesamte 1. Obergeschoss ist derzeit ebenfalls leerstehend. Das Gebäude in der derzeitigen Form, verfügt über einen rechtsgültigen Baubescheid und es sind Einreichpläne für den Ausbau des Dachgeschosses vorhanden. Alle Angaben und Flächenangaben lt. Pläne und ohne Gewähr! Änderungen/Irrtümer sind vorbehalten!
Stellplätze
keine
Zimmer
lt. Pläne
Böden
Fliesen-, Laminat- und Parkettböden
Fenster
Alufenster im Erdgeschoss und Kunststofffenster Obergeschoss.
Heizung
Das Erdgeschoss wird über das städtische Gasnetz versorgt. Im 1. Obergeschoss erfolgt die Energieversorgung mittels Ölzentralheizung. Die dazugehörige Anlage befindet sich im Keller des Hauses.
Bad
lt. Pläne
Möblierung
leer
Zustand
Die Bausubstanz kann als gut gewertet werden, jedoch bedarf das Gebäude einer Sanierung. Das Dachgeschoß ist ausbaufähig, es besteht allerdings Denkmalschutz, wobei der Denkmalschutz kaum mehr zum Tragen kommt.
Beziehbar
nach Vereinbarung!
Kaufpreis
€ 370.000,--
Besichtigungstermine
Besichtigungen können jederzeit nach telefonischer Vereinbarung getroffen werden!
Kaufnebenkosten
3,5% Grunderwerbssteuer
1,1% Grundbucheintragungsgebühr (Eigentumsrecht)
3,0% Maklerhonorar zzgl. 20% USt.
1,0% Kaufvertragskosten laut Notartarif zzgl. 20% USt.
0,1% Barauslagen für Beglaubigungen
1,2% Eintragung des Darlehens ins Grundbuch
Energiewerte
Der Verkäufer wurde über die Verpflichtung zur Vorlage eines Energieausweises (EAVG 2012) informiert und ist aktuell in Bearbeitung.
Manfred NEUHAUSER
+43 (0) 664.400 77 70
office@neuhauser-immobilien.at
Haben Sie eine Frage oder möchten die Immobilie besichtigen?
Kreditrechner
Berechnen Sie die monatliche Kredithöhe für die Finanzierung dieser Immobilie.
Bitte passen Sie die Vorgaben noch an Ihre Gegebenheiten an:
Bitte passen Sie die Vorgaben noch an Ihre Gegebenheiten an:
Die monatliche Rate beträgt:
€ --
Bitte beachten Sie, dass die tatsächlichen Konditionen abhängig von Bonität und Bank variieren können.
Adresse der Liegenschaft
Sie finden diese Liegenschaft unter folgender Adresse:
Schillerplatz 1, 9560 Feldkirchen
