Kreativ wohnen und arbeiten unter einem Dach
Wohnfl./Nutzfl.
490m²
Grundstück
429m²
Kaufpreis
€ 365.000
Details zur Liegenschaft
Lage
Wohnhaus inkl. Gewerbe-Widmung in zentraler, sonniger und ruhiger Stadtlage mit viel potentaial für mehrere Bereiche wie Küntsler, Handwerker, Firmen, Bauträger uvm. oder auch als Lagerräume, Seminarräume, Büroräume nutzbar.
Infrastruktur: Banken, Post, Bushaltestelle, Einkaufsmöglichkeiten, Kindergarten, Volksschule, Universität und der Wörthersee befinden sich in unmittelbarer Nähe und sind dadurch in kürzester Zeit erreichbar.
Infrastruktur: Banken, Post, Bushaltestelle, Einkaufsmöglichkeiten, Kindergarten, Volksschule, Universität und der Wörthersee befinden sich in unmittelbarer Nähe und sind dadurch in kürzester Zeit erreichbar.
Nähe
10 Gehminuten ins Zentrum von Klagenfurt.
Wohn-/Nutzfläche ca.
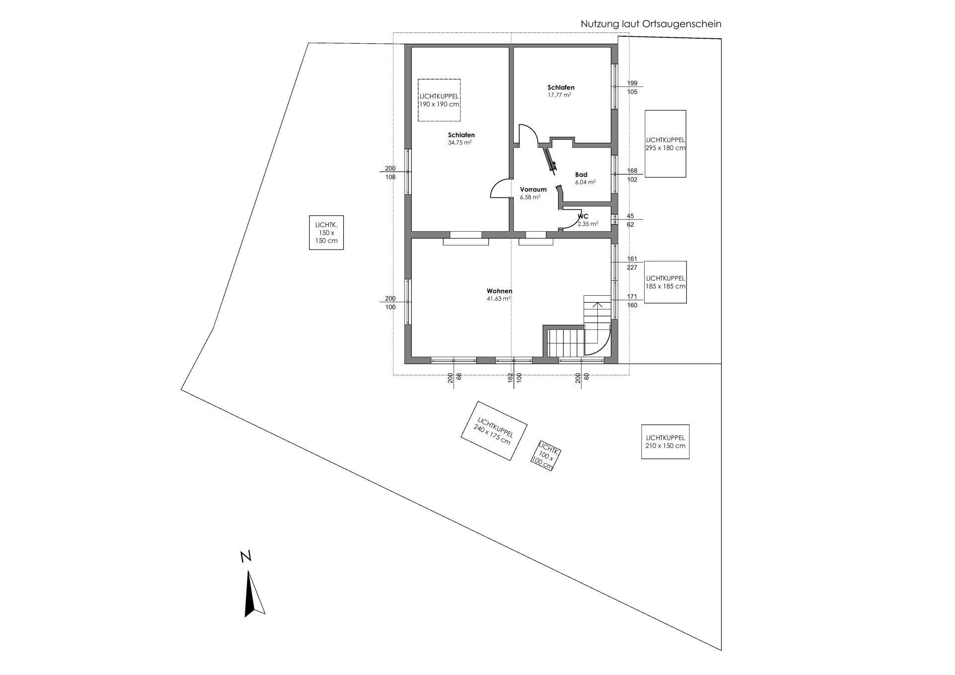
EG. u. OG. Maisonettewohnung: ca. 160 m² Wfl.
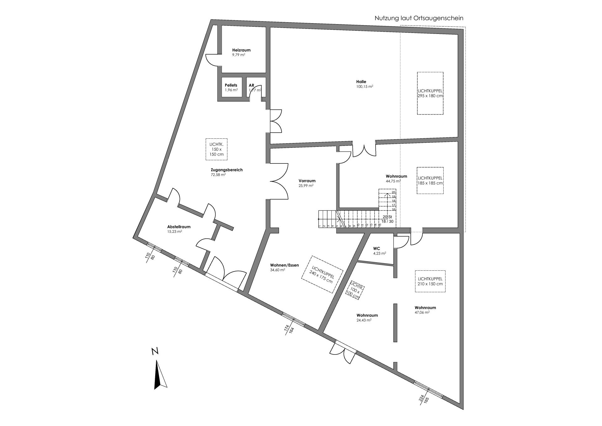
EG. Halle, Atelier, Büro: ca. 220 m² Nfl.
Heizraum, Pelletsraum, Garage und Lager: ca. 110 m² Nfl.
EG. Halle, Atelier, Büro: ca. 220 m² Nfl.
Heizraum, Pelletsraum, Garage und Lager: ca. 110 m² Nfl.
Grundstück
ca. 429 m², komplettes Grundstück verbaut, keine Grünfläche!
Baujahr
ca. 1950. Vor ca. 15 Jahren wurde die Elektrik überarbeitet, die Sanitärräume saniert und eine neue Pellets-Heizung verbaut.
Beschreibung
...mer mit Wanne und Dusche, WC separat
Erdgeschoss: 1 Halle, 1 Atelier, 2 Büroräume, 1 Badezimmer
Erdgeschoss: 1 Garage, 2 Lagerräume, 1 Tankraum für Pellets, 1 Heizraum, 1 E-Verteiler-Raum
Erdgeschoss: 1 Halle, 1 Atelier, 2 Büroräume, 1 Badezimmer
Erdgeschoss: 1 Garage, 2 Lagerräume, 1 Tankraum für Pellets, 1 Heizraum, 1 E-Verteiler-Raum
Stellplätze
Vor dem Objekt und zusätzliche, großzügige Garage
Zimmer
7, Loft- und Industrielook mit Oberlichtfenster für helle Räume
Böden
Fliesen, Lerchenholzboden
Fenster
doppelt verglaste Kunstofffenster
Heizung
Pellets über Schneckensystem und 7 Tonnen Fassungsvermögen
Bad
insgesamt 2 Bäder
Möblierung
Küche mit Geräten
Zustand
gut
Beziehbar
sofort
Betriebskosten
€ 346,00 Kanal, Müll und Grundsteuer, quartalsweise
€ 145,00 Gebäudeversicherung, monatlich
Heizung: ca. 25t Pellets / Jahresverbrauch bei Vollbetrieb (verbraucherorientierte Angaben)
Strom: ca. 150,-- im Monat (verbraucherorientierte Angaben)
Wasser: ca. 50,-- im Monat (verbrauchorientierte Angaben)
€ 145,00 Gebäudeversicherung, monatlich
Heizung: ca. 25t Pellets / Jahresverbrauch bei Vollbetrieb (verbraucherorientierte Angaben)
Strom: ca. 150,-- im Monat (verbraucherorientierte Angaben)
Wasser: ca. 50,-- im Monat (verbrauchorientierte Angaben)
Kaufpreis
€ 365.000,--
Kaufnebenkosten
3,5% Grunderwerbssteuer
1,1% Grundbucheintragungsgebühr (Eigentumsrecht)
3,0% Maklerhonorar zzgl. 20% USt.
1,0% Kaufvertragskosten laut Notartarif zzgl. 20% USt.
0,1% Barauslagen für Beglaubigungen
1,2% Eintragung des Darlehens ins Grundbuch
Energiewerte
HWBSK
230,00kWh/m²a
F
fGEE
2,53
E
Stefan MAYR
+43 (0) 664.540 22 22
mayr@neuhauser-immobilien.at
Haben Sie eine Frage oder möchten die Immobilie besichtigen?
Kreditrechner
Berechnen Sie die monatliche Kredithöhe für die Finanzierung dieser Immobilie.
Bitte passen Sie die Vorgaben noch an Ihre Gegebenheiten an:
Bitte passen Sie die Vorgaben noch an Ihre Gegebenheiten an:
Die monatliche Rate beträgt:
€ --
Bitte beachten Sie, dass die tatsächlichen Konditionen abhängig von Bonität und Bank variieren können.
Adresse der Liegenschaft
Sie finden diese Liegenschaft unter folgender Adresse:
Ebentaler - Straße, 9020 Klagenfurt am Wörthersee
