Neue und moderne 3 Zimmer Gartenwohnung 80,34m² in Waidmannsdorf mit Carport
Wohnfl./Nutzfl.
80,00m²
Grundstück
100m²
Miete mtl.
€ 1.250
Details zur Liegenschaft
Zimmer
3
Wohn/Nutzfläche ca.
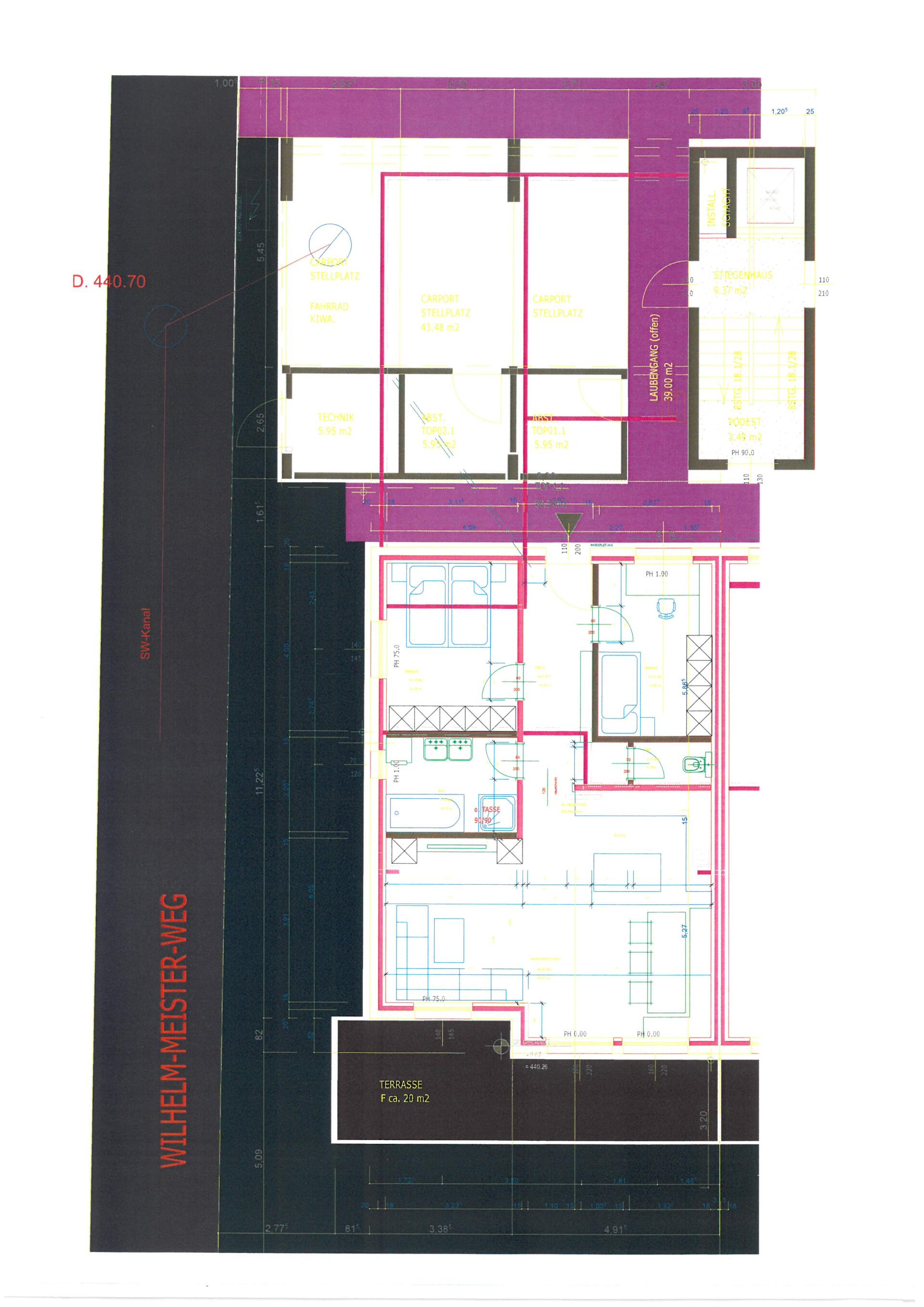
80,34m² plus ca. 20,00m² Süd-/Westterrasse und toller, uneinsichtiger ca. 100m² Eigengarten mit Hochbeet (Whg. TOP 1).
Beschreibung
...Süd-/Westterrasse und mit uneinsichtigen ca. 100m² Eigengarten, bestehend aus 1 Vorraum mit modernen Einbaukästen, 1 großes Wohn-/Esszimmer mit offener, toller neuw. Küche und großer Süd-/Westterrasse, 1 Schlafzimmer mit Einbaukästen, 1 Zimmer, 1 Bad mit Badewanne und barriererfreier Dusche, Doppelwaschbecken und Fenster, 1 WC extra, 1 Kellerabteil im Erdgeschoss mit Waschmaschinenanschluss und 1 fixer Carport-PKW Stellplatz TOP 1. Die Heizung (Fußbodenheizung) und das Warmwasser erfolgen mittels Fernwärme. Bitte keine Hunde, 2 Katzen sind erlaubt.
Ausstattung & Highlights
Hochwertige Parkettböden, Tischler-Einbaukästen im Vorraum, Schlafzimmer und Wohnzimmer, schöne Innentüren in Weiß, eletr. Außenraffstore mit Insektenschutz, tolles Bad mit barrierefreier Dusche, Handtuchtrockner und Fenster, alle Zimmer mit Einbau-LED-Deckenlampen ausgestattet! Schlüssel umdrehen und einziehen!
Miete
€ 1.250,-- inkl. BK und inkl. Heizung und inkl. Carport-Stellplatz.
Kaution
€ 5.000,--
Beziehbar
Ab 01.02.2025
Vertragsdauer
3 Jahre (Bindung 1 Jahr)
Energiewerte
HWBSK
38,00kWh/m²a
B
fGEE
0,70
A+
Gültig bis
26.06.2023
Manfred NEUHAUSER
+43 (0) 664.400 77 70
office@neuhauser-immobilien.at
Haben Sie eine Frage oder möchten die Immobilie besichtigen?
Adresse der Liegenschaft
Sie finden diese Liegenschaft unter folgender Adresse:
Wilhelm-Meister-Weg, 9020 Klagenfurt
