Junge & schöne 71,50m² 2 Zi City-Gartenwohnung mit 123m² Eigengarten & Tiefgarage - St. Veiter Ring
Wohnfl./Nutzfl.
71,50m²
Grundstück
123m²
Kaufpreis
€ 318.000
Details zur Liegenschaft
Lage
Sonnige und ruhige Lage
Nähe
Stadtzentrum - St. Veiter Ring 25A, 9020 Klagenfurt, Nähe Cityarkaden (Katzensprung)
Wohn-/Nutzfläche ca.
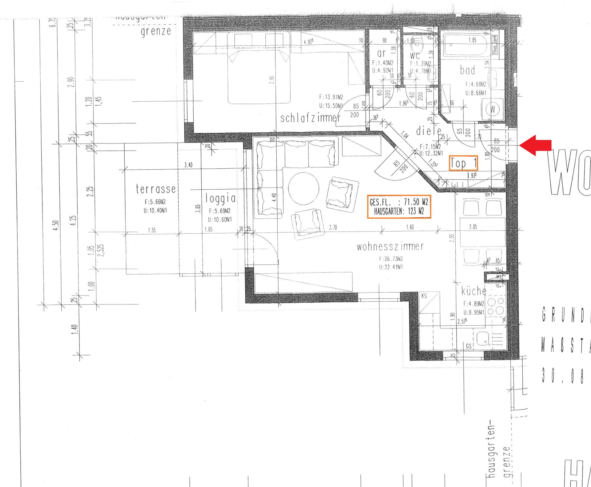
71,50m² inkl. Wintergarten plus ca. 123m² Eigengarten (ECKWOHNUNG).
Baujahr
um die 2008/2009 - REALITÄTENINVEST Wohnhausanlage
Stockwerk
Erdgeschoss - Wohnung TOP 1/C Süd-/Ostausrichtung
Lift
JA
Beschreibung
...Genießen Sie die echte Stadtlage im Innenhof und die Nähe zu den Cityarkaden. Die schöne Wohnung bietet viel Platz und ist mit einem großen schönen Eigengarten ausgestattet und ist wie folgt aufgeteilt, großer Vorraum/Garderobe (7,15m²), großes Wohn-/Esszimmer mit offener Küche (31,62m²), Wintergarten (ca. 11,35m²) mit Ausgang in den Eigengarten, Schlafzimmer (13,91m²), Bad mit Badewanne (4,68m²), WC extra (1,39m²) und Abstellraum (1,40m²). Weiters gehört zur Wohnung ein Kellerabteil mit ca. 4,68m². Alle Flächenangaben lt. Plan und Nutzwertgutachten und ohne Gewähr!
Ausstattung & Highlights
schöne Einbauküche, Wintergarten, großer ca. 123m² Eigengarten, barierrefreier Eingang, Tiefgarage, echte Stadtwohnung und supernah zu den Cityarkaden.
Stellplätze
1 Tiefgaragenstellplatz TOP 31
Zimmer
2
Böden
schöne Parkett- und Fliesenböden
Fenster
Kunststofffenster
Heizung
Heizung und Warmwasser mittels Fernwärme
Bad
Bad mit Badewanne und ein WC extra
Möblierung
nette Küche mit Geräten
Zustand
Sehr Gut
Beziehbar
Sofort möglich!
Betriebskosten dzt. ca.
€ 255,65 inkl. Heizung, Warmwasser, Verwaltung, Lift, Rücklage und TG.
€ 292.000 Rücklagenstand per 31.12.2024
€ 292.000 Rücklagenstand per 31.12.2024
Kaufpreis
€ 318.000,--
Vertragserrichter & Treuhänder
NOTARQUADRAT LINDNER & THALER - VERLASSENSCHAFT!
Kaufnebenkosten
3,5% Grunderwerbssteuer
1,1% Grundbucheintragungsgebühr (Eigentumsrecht)
3,0% Maklerhonorar zzgl. 20% USt.
1,0% Kaufvertragskosten laut Notartarif zzgl. 20% USt.
0,1% Barauslagen für Beglaubigungen
1,2% Eintragung des Darlehens ins Grundbuch
Energiewerte
HWBSK
41,00kWh/m²a
B
fGEE
0,83
A
Gültig bis
22.11.2031
Manfred NEUHAUSER
+43 (0) 664.400 77 70
office@neuhauser-immobilien.at
Haben Sie eine Frage oder möchten die Immobilie besichtigen?
Kreditrechner
Berechnen Sie die monatliche Kredithöhe für die Finanzierung dieser Immobilie.
Bitte passen Sie die Vorgaben noch an Ihre Gegebenheiten an:
Bitte passen Sie die Vorgaben noch an Ihre Gegebenheiten an:
Die monatliche Rate beträgt:
€ --
Bitte beachten Sie, dass die tatsächlichen Konditionen abhängig von Bonität und Bank variieren können.
Adresse der Liegenschaft
Sie finden diese Liegenschaft unter folgender Adresse:
St. Veiter Ring 25A, 9020 Klagenfurt
