Wohn- und Geschäftshaus 150m² in der Spitalgasse - Stadtzentrum Klagenfurt
Wohnfl./Nutzfl.
150m²
Grundstück
93m²
Kaufpreis
€ 175.000
Details zur Liegenschaft
Lage
Zentrale Wohn- und Geschäftslage in der Spitalgasse.
Nähe
Stadtzentrum
Wohn-/Nutzfläche ca.
117,00m² Wohn- und Geschäftsflächen
35,46m² Stiegenhäuser/Vorraumflächen
150,00m² Gesamt-Wohn-/Nutzflächen
35,46m² Stiegenhäuser/Vorraumflächen
150,00m² Gesamt-Wohn-/Nutzflächen
Grundstück
93m² flaches rechteckiges gelegenes Grundstück.
Baujahr
Altbau
Beschreibung
...hkeiten bestehend aus:
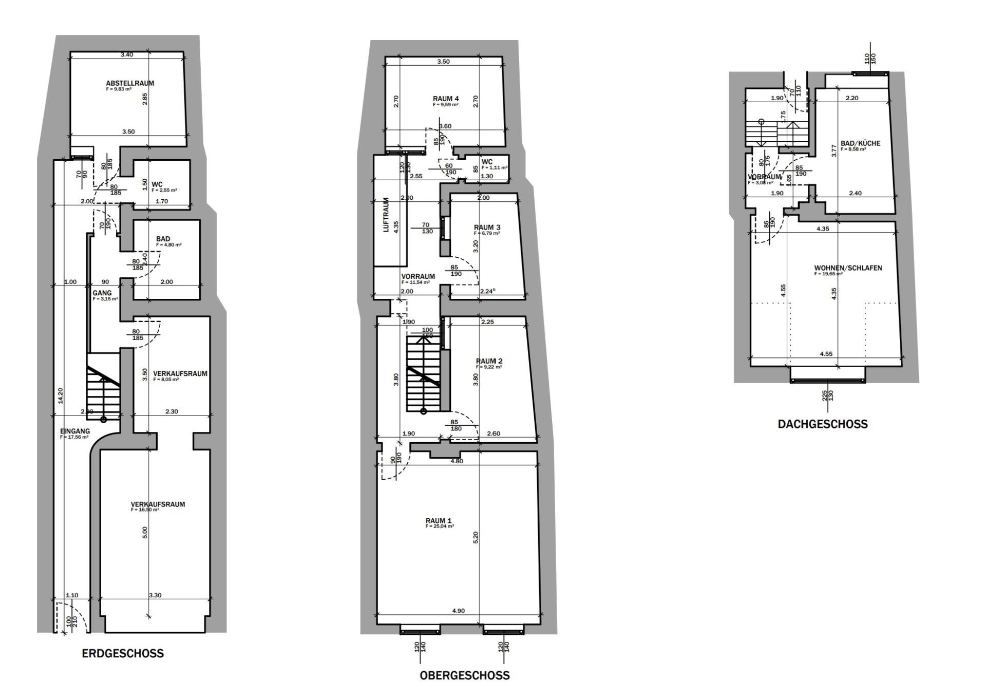
Erdgeschoss ca. 60,00m²: Vorraum/Stiegenhaus (14,41m²), Vorraum zum Geschäft (3,01m²), 1 Schauraum (17,09m²), 1 Raum (8,09m²), 1 älteres Bad (4,80m²), 1 WC stillgelegt (2,00m²) und 1 Lagerraum (10,00m²).
1. Obergeschoss ca. 55,00m²: Bestehend aus Vorraum/Stiegenhaus (17,78m²), 4 Einzelzimmern, wie 1 Zi mit 25,50m², 1 Zi mit 10,50m², 1 Zi mit 7,50m², 1 Zi mit 9,50m² und 1 Gang-WC 2,00m².
Dachgeschoss ca. 35,00m²: Vorraum/Stiegenhaus (3,27m²), 1 Wohnung mit Vorraum (3,20m²), 1 Wohn-/Ess-/Schlafzimmer (20,11m²), 1 Dusche (8,11m²).
Alle Angaben und Flächenangaben lt. Plan und ohne Gewähr! Irrtümer und Änderungen sind vorbehalten!
Erdgeschoss ca. 60,00m²: Vorraum/Stiegenhaus (14,41m²), Vorraum zum Geschäft (3,01m²), 1 Schauraum (17,09m²), 1 Raum (8,09m²), 1 älteres Bad (4,80m²), 1 WC stillgelegt (2,00m²) und 1 Lagerraum (10,00m²).
1. Obergeschoss ca. 55,00m²: Bestehend aus Vorraum/Stiegenhaus (17,78m²), 4 Einzelzimmern, wie 1 Zi mit 25,50m², 1 Zi mit 10,50m², 1 Zi mit 7,50m², 1 Zi mit 9,50m² und 1 Gang-WC 2,00m².
Dachgeschoss ca. 35,00m²: Vorraum/Stiegenhaus (3,27m²), 1 Wohnung mit Vorraum (3,20m²), 1 Wohn-/Ess-/Schlafzimmer (20,11m²), 1 Dusche (8,11m²).
Alle Angaben und Flächenangaben lt. Plan und ohne Gewähr! Irrtümer und Änderungen sind vorbehalten!
Stellplätze
Keine
Zimmer
2 Geschäftsräume im Erdgeschoss mit stillgeleten Bad/WC
4 Zimmer im 1. Obergeschoss mit Gang-WC
1 Dachgeschosswohnung mit Dusche
4 Zimmer im 1. Obergeschoss mit Gang-WC
1 Dachgeschosswohnung mit Dusche
Böden
PVC- und Fliesenböden.
Fenster
Holz- und Kunststofffenster
Heizung
Einzel-Holzöfen, Elektro (Gasanschluss vor der Haustüre lt. EKG)
Bad
2 Bäder und 2 WC
Möblierung
leer
Zustand
Sanierungsbedürftig
Beziehbar
Sofort!
Übergabe
Bestandsfrei!
Kaufpreis
€ 175.000,--
Kaufnebenkosten
3,5% Grunderwerbssteuer
1,1% Grundbucheintragungsgebühr (Eigentumsrecht)
3,0% Maklerhonorar zzgl. 20% USt.
1,0% Kaufvertragskosten laut Notartarif zzgl. 20% USt.
0,1% Barauslagen für Beglaubigungen
1,2% Eintragung des Darlehens ins Grundbuch
Energiewerte
HWBSK
269,00kWh/m²a
G
fGEE
4,84
G
Gültig bis
21.06.2028
Manfred NEUHAUSER
+43 (0) 664.400 77 70
office@neuhauser-immobilien.at
Haben Sie eine Frage oder möchten die Immobilie besichtigen?
Kreditrechner
Berechnen Sie die monatliche Kredithöhe für die Finanzierung dieser Immobilie.
Bitte passen Sie die Vorgaben noch an Ihre Gegebenheiten an:
Bitte passen Sie die Vorgaben noch an Ihre Gegebenheiten an:
Die monatliche Rate beträgt:
€ --
Bitte beachten Sie, dass die tatsächlichen Konditionen abhängig von Bonität und Bank variieren können.
Adresse der Liegenschaft
Sie finden diese Liegenschaft unter folgender Adresse:
Spitalgasse 15, 9020 Klagenfurt
